Appartamento al primo piano con vista
Proponiamo in vendita nella graziosa cittadina di Calasetta, più precisamente…
€129,000
Via Eugenio Barsanti, Iglesias, Sulcis Iglesiente, Sardegna, 09016, Italia
Vendita
€62,000
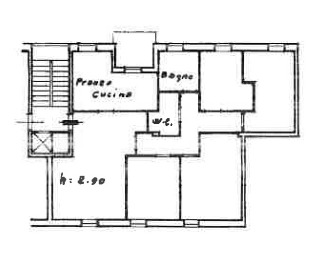
Iglesias. Nel tranquillo e servito quartiere di Serra Perdosa, in via Barsanti, proponiamo in vendita un ampio appartamento situato al quarto piano di un condominio.
L’immobile si presenta luminoso e accogliente, con una distribuzione degli spazi funzionale e comoda per una famiglia o per chi desidera ampi ambienti.
È composto da ingresso, cucina abitabile, soggiorno, tre camere da letto, due bagni e un balcone con vista aperta.
Completano la proprietà una cantina al piano terra, ideale come spazio di deposito.
L’appartamento gode di una buona esposizione, che garantisce luce naturale per gran parte della giornata, e si trova in una zona ben collegata con il centro città e vicina a scuole, supermercati e servizi principali.
Una soluzione perfetta per chi cerca comodità, spazi generosi e tranquillità senza rinunciare alla praticità della città.
Proponiamo in vendita nella graziosa cittadina di Calasetta, più precisamente…
€129,000
Iglesias. Via Crocifisso. In zona centralissima proponiamo una proprietà di…
€90,000
Compila il modulo per richiedere la tua consulenza personalizzata